Таунхаусы в Пятихатках - Сохо №9 / дом Сохо 1.1

Сохо №9  /  дом Сохо 1.1

  • Площадь дома
    150 м²
  • Земельный участок
    55 м²
  • Высота потолков
    до 3 м
  • Паркинг
    2
  • Подвал

Таунхауси Сохо

Будівництво розпочато у вересні 2020 року

Навесні 2022 року будівництво будівель буде закінчено

Восени 2022 року повне завершення робіт, включаючи благоустрій території

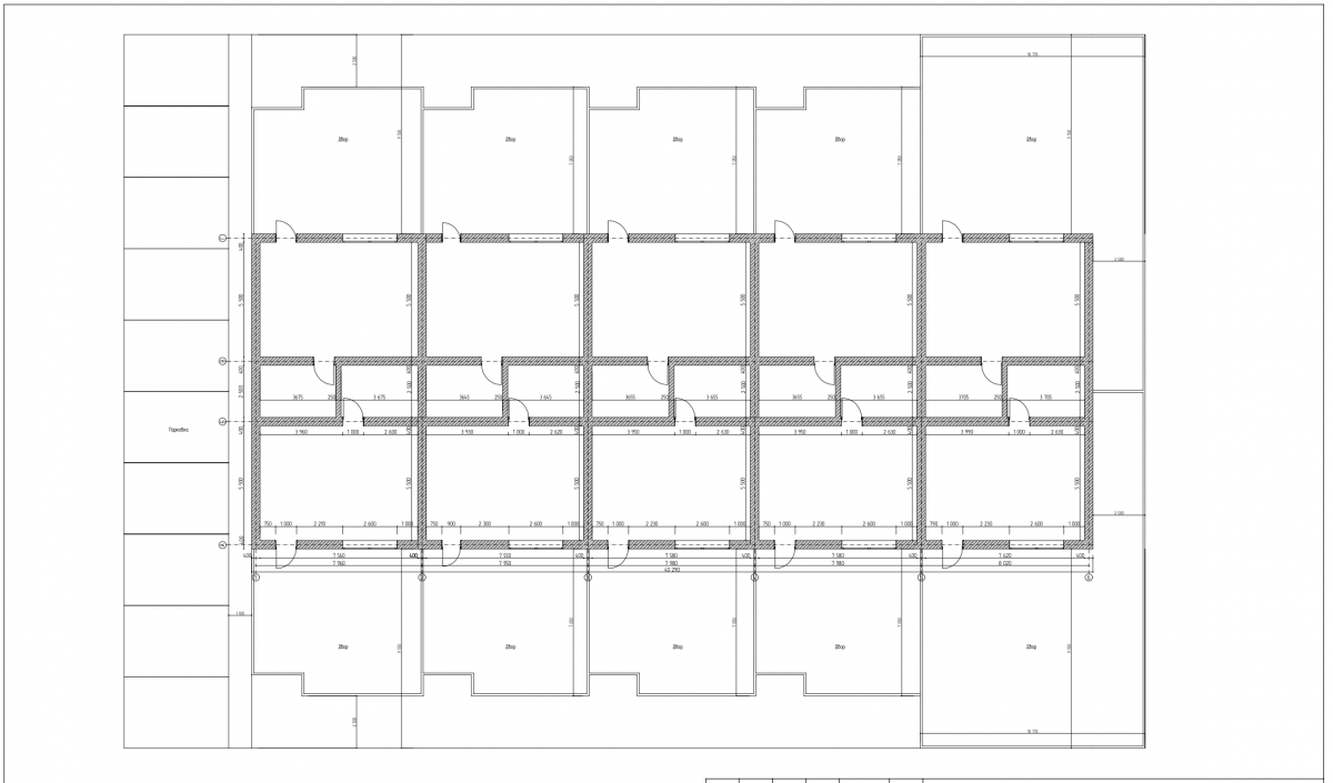
Таунхауси Сохо - невеликі за площею (макс 2 спальні на 2-му поверсі), сучасні таунхауси з високими стелями, широкою фасадною лінією (8 метрів), панорамними вікнами та великим приватним двором. Зверніть увагу, що вікна таунхауса Сохо виходять тільки на один бік. Протилежна стіна таунхауса - глуха, загальна із "дзеркально" розташованим сусідом. Тому і двір у Сохо не задній, а розташований перед будинком. Спочатку Ви заходите до себе у двір / сад, потім на Ваш ганок. Площа подвір'я 56 м кв (8м х 7м).

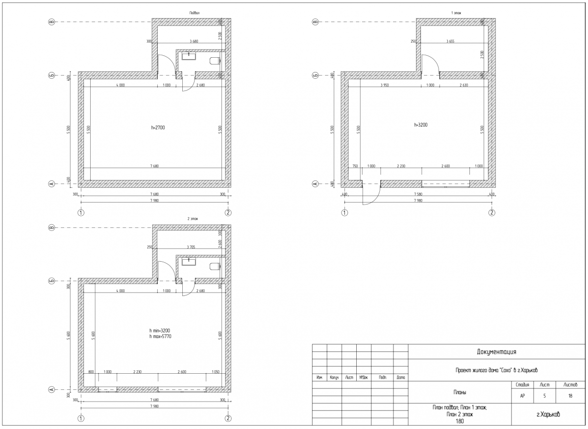
Таунхаус Сохо налічує 3 поверхи: перший, другий та технічний (підвал, високі стелі, гідроізольований та утеплений).

Кожен поверх будинку Сохо має площу 50 м кв.Загальна площа таунхаусу 150 м кв.

Акційна вартість діє за умови повної оплати.

Таунхаус Сохо можна взяти на виплат на 2 роки за повною його вартістю. При цьому перший внесок становитиме еквівалент 20 000 у.о., решта суми ділиться на 24 місяці та сплачується щомісяця. Пряма розстрочка від забудовника додаткових платежів немає.