Таунхаусы в Пятихатках - Річмонд №14 / дом Річмонд 2

Річмонд №14  /  дом Річмонд 2

  • Площадь дома
    336 м²
  • Земельный участок
    54 м²
  • Высота потолков
    до 3 м
  • Гараж
  • Подвал
  • Цена
    $150000 $145000

Таунхаус Річмонд №14                           

Початок будівництва - листопад 2021 року.

Повна здача будинків і прибудинкових територій - листопад 2023 року.

Готовність таунхаусів до внутрішніх ремонтних робіт - листопад 2022 року.

 

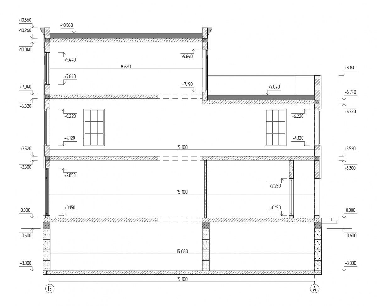
Річмонд №14 -  це триповерховий таунхаус із гаражем, підземним функціональним поверхом і величезною шикарною терасою на третьому поверсі. Внутрішня чистова ширина таунхауса 5,7 метра. Площа одного поверху 86 м кв. Загальна площа таунхауса 336 м2, з яких 23 м2 - гараж, 36 м2 - тераса на третьому поверсі. До кожного таунхауса прилягає ділянка землі - задній двір 54 м2. А також 2 паркомісця перед кожним таунхаусом. У торцевій стіні таунхауса передбачено два додаткових вікна. 

Технологія будівництва: 

Збірно-монолітний фундамент. На дні котловану утрамбовується піщана подушка, вариться армований каркас і заливається єдиний на всю будівлю монолітний бетонний диск товщиною 220 мм. Потім бетонними блоками 400 мм товщини викладаються стіни фундаменту. Із зовнішнього боку фундамент гідроізолюється мембраною і утеплюється пінополістирольними плитами 30 мм. 

Перекривається ЗБ плитами перекриття повнотілими 200 мм. Залишаємо отвір під сходовий марш. 

Стіни 1-го поверху будуються з червоної цегли 380 мм (несучі) і 250 мм (фасадні). 

Перекривається ЗБ пустотілими плитами перекриття 220 мм. Залишаємо отвір під сходовий марш. 

Стіни другого і третього поверхів - екологічний газоблок 300 мм. 

Перекриття третього поверху і тераси - ЗБ плита 300 мм. 

Плоска покрівля, пінобетонний утеплювач 300 мм, руберойд на скловолокні, руберойд із крихтою. 

Тераса плоска, пінобетонний утеплювач 300 мм, скловолокно/геотекстиль, ПВХ мембрана. 

Фасад будинку по периметру утеплений блоками пінопласту 100 мм, відшпакльований і поклеєна клінкерна плитка. 

Фасадні елементи відшпакльовані фасадною штукатуркою і пофарбовані згідно з архітектурним рішенням. 

Обрамлення віконних прорізів виконано з відшпакльованого та пофарбованого пінополістиролу згідно з дизайн-проєктом. 

Вікна - п'ятикамерний профіль, двокамерний склопакет Aluplast. Термовідкоси.