Таунхаусы в Пятихатках - Річмонд №3 / дом Річмонд 1

Річмонд №3  /  дом Річмонд 1

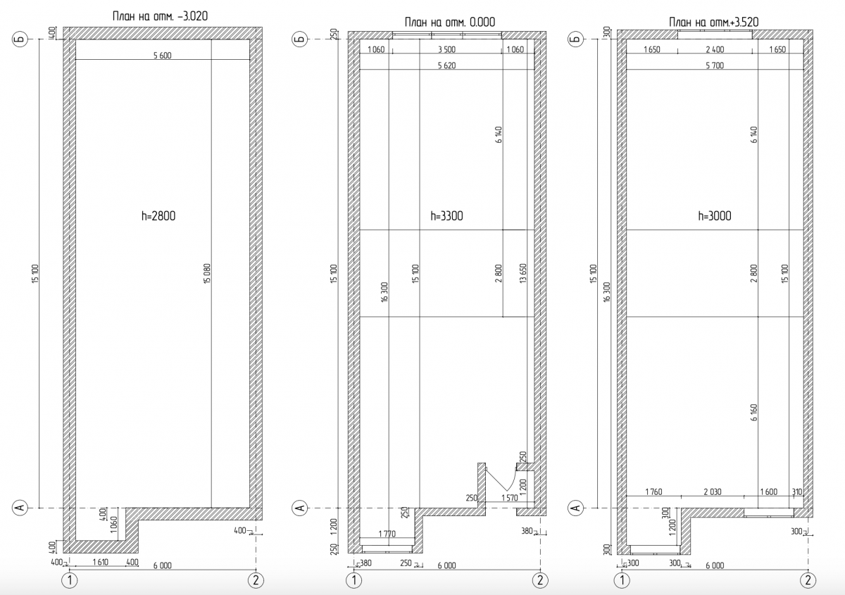
  • Площадь дома
    260 м²
  • Земельный участок
    54 м²
  • Высота потолков
    до 3 м
  • Паркинг
    2
  • Подвал

Таунхаус Річмонд №3                            

Початок будівництва – листопад 2021 року.

Повна здача будинків та прибудинкових територій – листопад 2023 року.

Готовність таунхаусів до внутрішніх ремонтних робіт – листопад 2022 року.

Річмонд №3 -  це двоповерховий таунхаус з підземним функціональним поверхом, максимальною житловою площею, еркерним виносом та величезними вікнами.Внутрішня чистова ширина будинку 5,7 метра. Площа одного поверху 86 кв. Загальна площа таунхауса 260 м2. До кожного будинку прилягає ділянка землі - задній двір 54 м2. А також 2 паркомісця перед кожним будинком.

Технологія будівництва:

Збірно-монолітний фундамент. На дні котловану утрамбовується піщана подушка, вариться армований каркас і заливається єдиний на всю будівлю монолітний бетонний диск товщиною 220 мм. Потім бетонними блоками 400 мм викладаються стіни фундаменту. Із зовнішнього боку фундамент гідроізолюється мембраною і утеплюється пінополістирольними плитами 30 мм.

Перекривається ЗБ плитами перекриття повнотілими 200 мм. Залишаємо отвір під сходовий марш.

Стіни 1-го поверху будуються з червоної цегли 380 мм (несучі) та 250 мм (фасадні).

Перекривається ЗБ порожнистими плитами перекриття 220 мм. Залишаємо отвір під сходовий марш.

Стіни другого - поверховий - екологічний газоблок 300 мм.

Плоска покрівля, ЖБ плита 300 мм, пінобетонний утеплювач 300 мм, руберойд на склополотні, руберойд з крихтою.

Фасад будинку по периметру утеплений блоками пінопласту 100 мм, відшпакльований та поклеєний клінкерна плитка.

Фасадні елементи відшпакльовані фасадною штукатурною та пофарбовані згідно з архітектурним рішенням.

Обрамлення віконних прорізів виконано з відшпакльованого та пофарбованого пінополістиролу згідно дизайн-проекту.

Вікна - п'ятикамерний профіль, двокамерний склопакет Aluplast. Термоукоси.

Акційна вартість діє за повної оплати відразу. Вартість без знижки передбачає можливість взяти таунхаус на виплат на 2 роки.

Стартовий внесок за цей будинок 40 000 у.о.