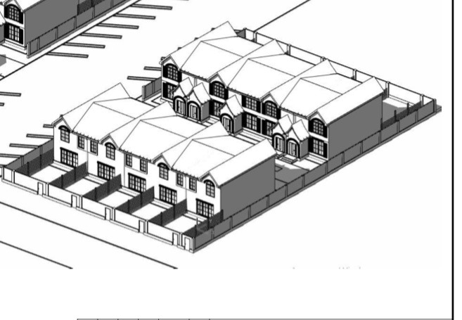
Таунхаусы в Пятихатках - Оксфорд 2 / дом Оксфорд 1.1

Оксфорд 2  /  дом Оксфорд 1.1

  • Площадь дома
    180 м²
  • Земельный участок
    42 м²
  • Высота потолков
    до 3 м
  • Паркинг
    2
  • Подвал

В продаже остался только один Оксфорд! 

Таунхаус продается в рассрочку на 2 года. Первый взнос 20 000 у.е., остальная сумма делится на 24 равные части и выплачивается покупателем 2 года. 

Таунхаусы Оксфорд будут сданы осенью 2022 года. 

С весны 2022 года можно приступать к внутренним ремонтам.