Таунхаусы в Пятихатках - Английский №4 / дом Англійські

Английский №4  /  дом Англійські

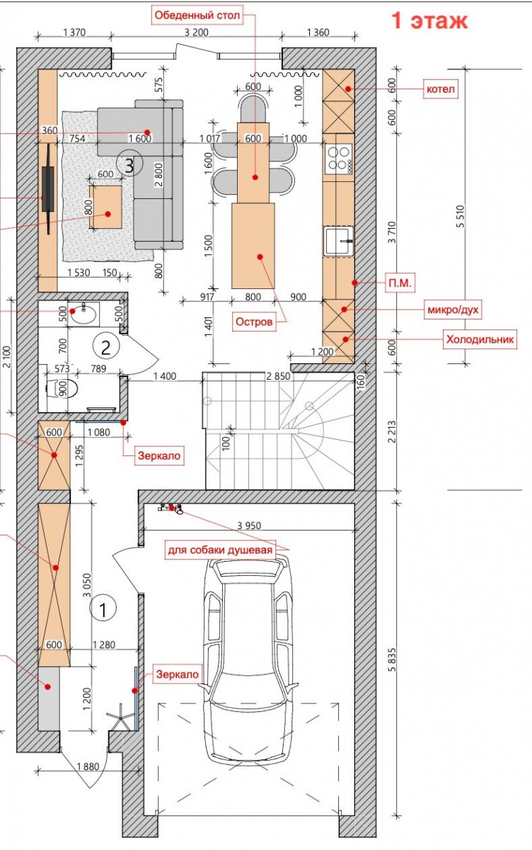
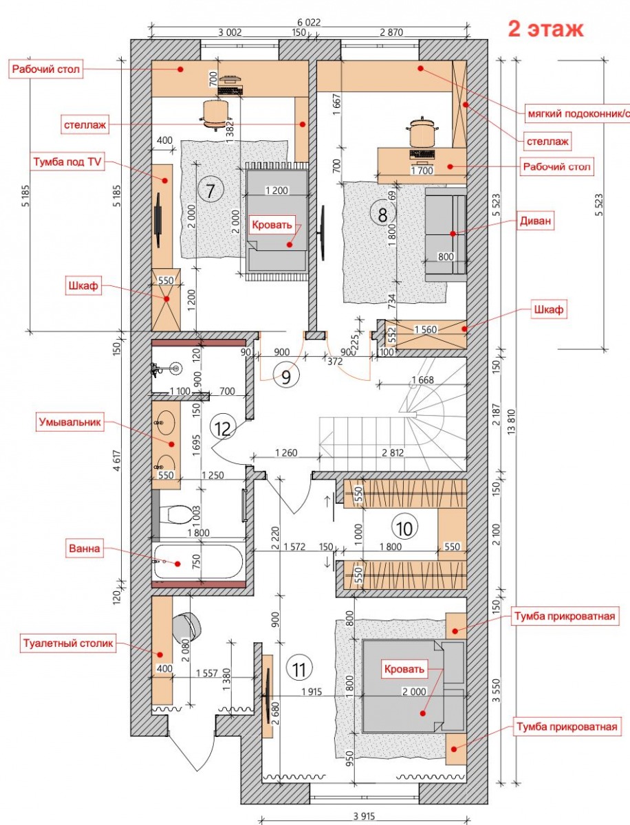
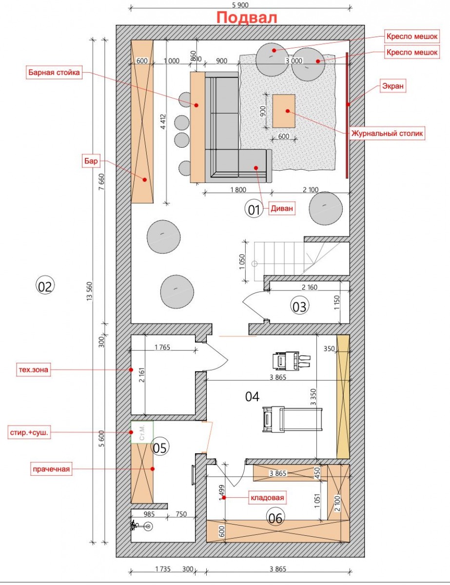
  • Площадь дома
    245 м²
  • Земельный участок
    150 м²
  • Высота потолков
    до 3 м
  • Гараж
  • Подвал
  • Цена
    $150000

Продается таунхаус от владельца в связи с переездом в другую страну. Таунхаус сдан в эксплуатацию в 2021 году. 

В таунхаусе уже окончены черновые работы. Прекрасный шанс быстро доделать ремонт и въехать в новый дом уже в этом году. 

К тому же собственник дарит полный дизайн проект со всеми чертежами, что сэкономит новым владельцам время и деньги).

Что сделано: 

Внутренняя гидроизоляция подвала

Выравнивающая стяжка на всех этажах

Утепление кровли, крыша подшита огнеупорным гипсокартоном 

Доп. утепление подвала со стороны заднего двора

Отмостка (ширина 2 м) 

Межкомнатные перегородки из красного кирпича

ЦПС Штукатурка подвал, 1 эт., с/у 2 эт.

Гипсовая Штукатурка 2 эт

Лестница - металлокаркас, обшит фанерой (в роли подложки). 

Газовый котёл одноконтурный 24 кВт - Vaillant turbo TEC plus VU 242/5-5: зарегистрирован и подключён

3D модель дома: вентиляция, коммуникации (находится у прораба)

Мансардное окно (купленно, ещё не установленно) 

Готовый дизайн проект с визуализацией: планировка, планы подключения розеток, освещения, труб и отопления.